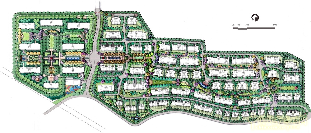
DDON笛東亞洲宜居住區金獎作品:信陽威達南灣四季

項目位置:河南信陽
開發商:河南威達房地產開發有限公司
項目類型:高端別墅區
景觀設計:DDON笛東
項目規模:92700平方米
設計時間:2013年
獲獎情況:2014年度墅院標桿名盤獎
2014年度園冶杯“亞洲宜居住區金獎”

平面圖
編輯:zhaoai
相關閱讀
DDON笛東榮獲2016年北京園林優秀設計獎
DDON笛東在此次北京園林優秀設計獎評選中獲得三項殊榮,這既是業界給予笛東的肯定,也充分展示了DDON笛東的綜合實力。以“不糊弄”為核心價值觀的笛東,將一如既往,保持對設計精益求精的態度,鑄造具有卓越品質的設計作品。【詳細】
精益求精鑄造卓越 DDON笛東三項目連獲殊榮
2015年10月初,由中國風景園林學會主辦的“第三屆優秀規劃設計獎”評選活動已經完成全部評審程序,并對外公布獲獎名單。DDON笛東設計作品“合肥濱湖濕地森林公園一期景觀設計工程”在183個參評項目中脫穎而出,喜獲殊榮。該項目位于合肥市包河區,定位為復合型濱湖濕地森林公園。【詳細】
DDON笛東商業綜合景觀設計:京投銀泰琨御府
中國風景園林網訊 本項目地處北京市中心城區,位于海淀區西三環至西四環之間,毗鄰昆玉河、玲瓏公園等不可復制的自然資源。基于城市核心地帶極為稀缺的土地、自然資源,及高水準的整體設計,琨御府開盤當日盛銷24億,創下2014年度北京市場開盤當天最高銷售紀錄。【詳細】
DDON笛東西安輕奢地產漫談會圓滿舉辦
5月29日下午,由DDON笛東攜手《地產線》主辦的“輕奢地產漫談會”在西安星河灣會所圓滿舉辦。本次活動是DDON笛東系列沙龍的第三站,該活動也是本年度西安最具影響力的漫談會之一,共吸引來自龍湖地產、綠地集團、金地集團、天朗控股、紫薇地產、復地集團、陽光城、秦達房地產等數十家開發商約七十多人參與。【詳細】
