印度班加羅爾“野生”花園涼亭景觀設計
2015-08-10 09:07:14 來源:ArchDaily 瀏覽次數:


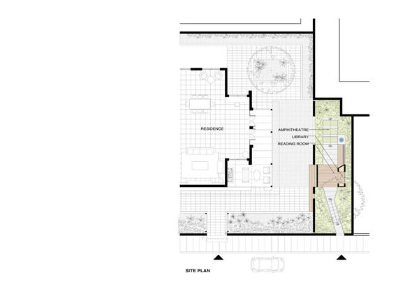
平面圖
編輯:wangying
凡注明“風景園林網”的所有文章、項目案例等內容,版權歸屬本網,未經本網授權不得轉載、摘編或利用其它方式使用上述作品。已經本網授權者,應在授權范圍內使用,并注明“來源:風景園林網”。違反上述聲明者,本網將追究其相關法律責任。
相關閱讀
汪怡嘉:特色城鎮的景觀設計與實踐
汪怡嘉女士是臺灣中國文化大學造園景觀系教授,曾任AECOM 中國區景觀設計副總監,致力于園林景觀規劃及設計已有二十年以上。她多元化的項目經驗來自美國、臺灣、香港、中國大陸及其它亞洲不同地區的項目。項目類型包括【詳細】