2017園冶杯專業獎參賽項目:陽光城麗茲公館示范區景觀設計
現代手法演繹傳統韻味
精工細節傳頌法式風情
結合時下景觀發展趨勢
簡練、創新、突破
打造傳統與時尚相諧相融的“輕”法式景觀
項目名稱:陽光城麗茲公館示范區景觀設計
項目詳細地址:鄭州中原區陽光城麗茲公館
竣工時間:2017年6月
項目面積:7401㎡
業主單位:鄭州鑫嵐光房地產開發有限公司
設計單位:上海森意景觀設計有限公司
主創設計師:楊蘭
項目概述
項目位于鄭州中原區石羊寺社區;項目占地8401㎡,東為規劃路,南抵伊河路,西側緊挨市政綠化帶,鄰西三環高架。項目定位為輕法式景觀,用現代手法演繹傳統韻味,精工細節傳頌法式風情成為設計的主要思路。在傳統法式的基礎上,保留法式園林的突出特點——軸線,保留法式元素的精致、高貴之感,結合時下景觀的發展趨勢進行簡練、創新、突破,打造傳統與時尚相諧相融的“輕”法式景觀。
設計思路
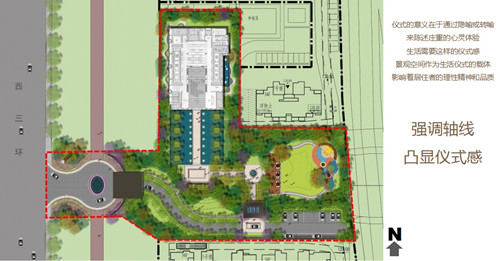
全區景觀設計貫徹強調軸線凸顯儀式感的設計方法,高大門樓以規整的軸線和陣列為環境帶來強烈的儀式感、落客區門樓巍然屹立彰顯大宅風范和大家門楣、中軸水景莊重典雅,形成大氣、規則、具有儀式感的空間。另外全區唯一的自然度假式景觀童夢童享主題樂園是項目的一大亮點,結合木平臺洽談區,成為項目最聚人氣的功能場地。

▲總平面圖

▲功能分區

▲體驗動線
分區設計
迎賓廣場
保留法式風格中的材質、色彩,同時摒棄復雜的肌理和裝飾,以規整的軸線和陣列為環境帶來強烈的儀式感,將人性的尺度和細節的考究納入整體考量,以精致的藝術刻畫彰顯地塊的尊貴身份。


林蔭大道/花園道
林蔭大道和花園道的設計運用當地樹種,營造綠意環繞的夾道,為業主帶來積極健康的生活態度。步道兩側退讓出一片草坪,營造出歸家自由的休閑感。


落客區
門樓巍然屹立彰顯大宅風范和大家門楣,承啟建筑出入禮制,襯映家族大人物之威儀,進出之間,名仕歸家的無上尊榮,不彰自顯。


童夢童享主題樂園
隨著孩子慢慢的成為了熱門話題,童夢童享主題樂園做為項目的一大亮點,結合木平臺洽談區,成為項目最聚人氣的功能場地。


中軸水景
中軸水景莊重典雅,將樹池與水景完美結合,打造出令人賞心悅目的視覺效果,而強烈的軸線感又很好的襯托出建筑的貴族氣質。匠心打造超大鏡面水景,一川煙水光影于此完美演繹,形成大氣、規則、具有儀式感的空間。



▲中軸水景對景墻

▲中軸水景對景墻
編輯:liqing
相關閱讀
天津第32屆運河桃花節舉辦
3月17日,第32屆天津運河桃花文化商貿旅游節如約而至。在北運河畔的桃花堤,微風輕拂,桃紅柳綠,人們三五成群地踏青、賞花,趕赴一場浪漫的春日之約【詳細】
海南大山泰景觀承建國家公園大門獲世界自然保護聯盟領導肯定...
在海南熱帶雨林國家公園五指山大門,陳俊霄向調研組匯報了國家公園大門(五指山)建設情況,章新勝對陳俊霄參與設計、海南大山泰景觀工程有限公司承建的國家公園大門(五指山)項目的創意主題【詳細】
海南首個園林式遺體器官捐獻者紀念園開園
三亞市遺體器官捐獻者紀念園坐落在三亞市荔枝溝路殯葬服務中心內、烈士紀念園旁,于2022年3月開工,2023年2月竣工,占地600余平方米,由三亞市人民政府投資建設【詳細】
江蘇揚州:今年實施五大攻堅行動提升城市綠化
城市道路綠化增綠行動。利用今年春季綠化黃金季節,針對城市道路綠化達標率、林蔭路覆蓋率等指標,全面開展道路綠化增綠提綠補綠,重點對87條道路的行道樹“有綠無蔭、有景少蔭”、綠化品種單一等問題進行整改,形成配置合理、錯落有致、層次清晰的道路綠化景觀【詳細】



