蘭州市城市規劃展覽館呈現出歷史和文化的沉淀
蘭州市城市規劃展覽館選址位于蘭州市城關區北濱河東路與人民路交口位置,黃河北岸。建設用地呈不規則形,東西向沿黃河展開。

蘭州市作西部重要的中心城市,中華民族的母親河黃河奔流而過,建筑取 “黃河石”為設計意向,整體表現為被黃河水積年累月沖刷的石頭,同時,體塊的切削處理則更像一塊被石頭包裹的黃河璞玉,呈現出歷史和文化的沉淀。


場地周邊區域發展成熟,景觀條件得天獨厚。濱河綠帶在基地內延伸。建筑南側臨水部分的設計作為一個重點,以自然的坡地形態,使濱河道路延伸至黃河河面,創造親水的城市空間,使建筑與環境渾然一體。

總平面圖

建筑立面呈現體塊切削的感覺,南側沿河設計多處橫向的玻璃嵌縫,如璞玉被沖刷之后的效果。同時,這種玻璃嵌縫更成為從建筑內部欣賞黃河美景的窗口。建筑空間順應展陳建筑特點,采用回字形的展陳流線圍繞城市總規模型展開,外部現澆清水混凝土立面在公共空間位置延伸至室內。


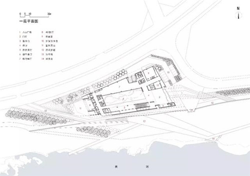
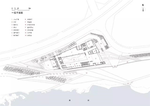
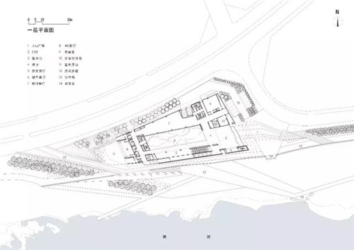
一層平面圖




立面材料采用橫向肌理的現澆清水混凝土,產生比較粗獷的肌理,以此表達自然化的建筑形態。為化解大面積混凝土材料帶來的的單調感,在表面平整基礎上設計自下而上逐漸過渡的橫向凹縫,加強建筑的層次感,同時在近人凹縫內隱含黃河卵石肌理,使建筑的地方意味更加濃厚。












編輯:guoai