2019園冶杯專業獎丨常州美陽·江山樾
城市地,如園之,必向幽偏可筑,鄰雖近俗,門掩無嘩。開徑逶迤,竹木遙飛疊雉;臨濠蜒蜿,柴荊橫引長虹。
——《園冶•相地》

常州美陽·江山樾
項目名稱 常州美陽·江山樾
項目位置 江蘇省常州市新北區
項目面積 3500㎡
業主單位 常州市美陽房地產發展有限公司
設計單位 上海岱樸景觀設計有限公司
項目概述
本案位于常州市新北區,東臨衡山路,與常州市外國語學校一路之隔,北側及東側均為建成商業及住宅項目,南側為公園綠地,鄰近常州江南環球港。

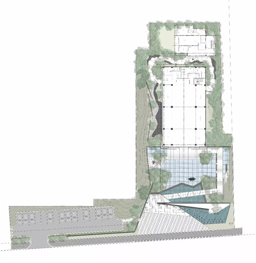
△ 總平面圖
展示區位于地塊東北角,用地3500㎡,展示完成后將作為大區人行出入口,大部分展示區域為永久景觀。

△ 前場鳥瞰

△ 前場鳥瞰
設計思路
在本案中,設計師希望場地不僅是停留在形式表面的歡愉,而是能夠引起參與者精神層面的共鳴。通過設計所傳達出的場所精神,在展示區形成有別于外、靜謐舒適的景觀氛圍,從而為參與者帶來不同的游覽體驗。
山
對于城市空間,無論建筑、規劃、景觀,各專業設計師都應具有足夠的社會責任感。對于展示界面,應和而不同,周而不比,以平延之勢呼應城市形象,顯而不露,引而不發,既能夠以足夠的尺度形成良好的昭示性,同時宛如屏障一般隔絕喧囂嘈雜,藏心于境,藏情于景。

△ 入口尺度與建筑體量的關系

△ 有韻律的格柵在水中形成倒影
“高門樓,大挑檐,入門必有回型廊”不僅是戲謔,也是當下多數示范區的真實寫照。在本案中,我們希望場地不僅是停留在形式表面的歡愉,而是能夠引起參與者精神層面的共鳴。通過設計所傳達出的場所精神,在展示區形成有別于外、靜謐舒適的景觀氛圍,從而為參與者帶來不同的游覽體驗。

△ 多年樹木,礙筑檐垣,讓一步可以立根,斫數椏不妨封頂

△ 具有雕塑感的門頭如山脈橫亙

△ 入口夜景

△ 未來將做為交付區人行出入口繼續保留

△ 未來將做為交付區人行出入口繼續保留

△ 未來將做為交付區人行出入口繼續保留

△ 未來將做為交付區人行出入口繼續保留
水
出則繁華盡攬,入則靜謐獨藏,是古今文人所追求的極致歸家體驗,所表達的就是一種通過景觀的步移景異,從而引起參與者心境的變化。由內而外為入塵世,清爽利落,收放自如盡顯大氣;由外向內為歸田園,綠意盎然,春花秋月盡收眼底,水波潺潺,花開云展蔚為大觀!

△ 春色滿園,光影斑斕

△ 春色滿園,光影斑斕

△ 架橋通隔,別館堪圖

△ 聚石疊圍,居山可擬

△ 篆刻玻璃磚燈——知者動,仁者靜

△ “琢石”
水院中心位置,一座藝術雕塑不僅成為場地亮點,同時提升了場地的人文氣質。在設計中,我們不希望她是場地的絕對主角,而是希望她溶于環境,服務空間,卻卓爾不群。我們取義“石出太湖”這一典故,以枝條穿插的形式來構成雕塑的輪廓,形成虛實相生的感受。如石生于水下,受水流雕琢、浸泡、沖刷,一朝成型,升出水面,水波傾瀉而下的感覺——故名“琢石”。

△ 雕塑近景

△ 雕塑細節

△ 水面中建筑與雕塑形成的倒影

△ 水面中建筑與雕塑形成的倒影

△ 水面中建筑與雕塑形成的倒影
影
臨溪越地,虛閣堪支;來巷借天,浮廊可度。設計師利用廊的連接和滲透,串聯起前場與建筑的空間,將景觀與天光的聯系緊密地結合為一體。陽光從墻壁的縫隙間浸入,在地面形成進退有致的虛實光影,同時,陽光灑向水面,通過反射將光投射在長廊的頂面上,形成更有層次,有趣味的光影關系。

△ 似多幽趣,更入深情

△ 光影長廊

△ 潺潺水聲在光影長廊中形成靜謐的禪意美

△ 流水臺自然面向光面的漸變肌理

△ 樹影灑向墻面

△ 樹影灑向墻面

△ 樹影灑向墻面
編輯:王月
相關閱讀
江蘇揚州:今年實施五大攻堅行動提升城市綠化
城市道路綠化增綠行動。利用今年春季綠化黃金季節,針對城市道路綠化達標率、林蔭路覆蓋率等指標,全面開展道路綠化增綠提綠補綠,重點對87條道路的行道樹“有綠無蔭、有景少蔭”、綠化品種單一等問題進行整改,形成配置合理、錯落有致、層次清晰的道路綠化景觀【詳細】
北京昌平新城東區將打造濱水商業消費新地標
昌平新城東區位于昌平區南邵鎮,規劃建設用地面積11平方公里,規劃人口12萬,圍繞打造首都北部消費新地標編織街區控規已獲批。未來,昌平新城東區將打造成為京北體驗消費示范區、山水宜居典范城區、高水平綜合服務承載區和智慧產研創新園區【詳細】
南寧園博園舉辦“禮樂園博·南寧花朝盛典”
活動期間,南寧園博園還舉辦了漢服新秀大賽、同袍巡游、及笄成人禮、國風婚禮妝照展示、明制婚禮儀式典禮、六藝游園、書畫體驗、國風集市等精彩紛呈的活動,同時邀請眾多知名國風模特參與表演展示【詳細】
成都首屆“最美公園”評選結果出爐
據成都市公園城市建設管理局相關負責人介紹,本次“最美公園”評選范圍包括23個區(市)縣已建成開放的1514個公園,包括綜合公園、口袋公園,還有郊野公園【詳細】



