“三重桌”納福胡同13號——極致多變的辦公空間,將城市設計思考引入室內
項目名稱:“三重桌”納福胡同13號
項目地點:中國北京
項目類型:辦公室、工業廠房改造
建筑面積:500平方米
業主單位:北京冶金設備自動化研究所
建筑設計:PMA設計事務所
主持設計師:王川
設計團隊:許怡然、劉澤宇、潘子其、劉怡雯、張曉宇、Marco Dambrogio、王余汀、陳雪琪
機電顧問:北京天恒凱銳起重機械有限公司
建造商:北京東賦天下裝飾有限公司
設計及施工周期:2014
攝影師:趙俊、瞿平山、陳佳婧
攝像:Andrea Cadioli
“三重桌”項目是PMA設計事務所為自己設計的新辦公室,位于北京東城區二環內的納福胡同13號院北京冶金設備自動化研究所。該項目地理位置優越,附近有包括嵩祝寺及智珠寺兩寺合一的喇嘛廟、皇城根遺址公園、南鑼鼓巷、景山公園、玉河遺址在內的多個文化遺址。此地在清代乾隆時稱內府大街,民國初年京兆尹將“內府”諧音為“納福”,取吉祥之意。建國后1956年公司合營,納福胡同13號院成立北京銅絲廠,后1978年成立北京冶金設備自動化研究所。院內整體建筑風格為典型的紅磚墻廠房,包括主院北樓、南樓以及南院配樓,本項目所在場地位于主院北樓首層,占地500平方米,內部空間開敞,擁有3.75米的層高和6米×6米的柱網,其現有框架結構為后期改造提供了良好的基礎。新的辦公空間設計為PMA+Plasma及東西跨界設計研究中心共同使用。
The "Triple Layer Table" Project, a new office designed by PMA (PolyMorphArchitects) for themselves, is located in Beijing Institute of Metallurgical Equipment Automation, Nafu Hutong Courtyard No.13, 2nd Ring, Dongcheng District, Beijing. The project is well located with several cultural sites nearby, including the lamasery of Songzhu Temple and Zhizhu Temple, Huangchenggen Ruins Park, South Luogu Lane, Jingshan Park and Yuhe Relic Site. In the Qing Dynasty, during the reign of Emperor Qianlong, it was called Neifu Street. In the early years of the Republic of China, it was renamed by Jing Zhao Yin as the homophonic "Nafu", a name implies auspicious meaning. After the founding of the People's Republic of China, in 1956, Beijing Copper Wire Factory was established in Nafu Hutong Courtyard No.13, and in 1978, Beijing Institute of Metallurgical Equipment Automation was established here. The overall architectural style in this yard is of a typical red-brick factory building, including the north and south buildings in the main yard, and the subsidiary building in the south yard. The project is located on the first floor of the north building, covering an area of 500 square meters. The interior is spacious, with a height of 3.75 meters and a column grid of 6×6 meters. The existing frame structure provides a good foundation for the later renovation. The new office space is designed for use by PMA+Plasma studio and the West- East Crossboundry Design Research Center.

項目區位圖Project location map

改造前照片Before renovation

辦公室所在的院子The courtyard where the office is located
©瞿平山 Pingshan Qu

改造后的辦公室軸測圖Axonometric drawing of the office after renovation
讓靈感自由生長的辦公區域
An office space for inspiration to grow freely
開放辦公區的設計手法以保留本身工業建筑痕跡為主要目標,減少過多色彩和裝飾。在當前這個多信息時代,人們每天通過各種渠道主動或被動地接受了過剩性信息,相形之下,一個平靜和自由的空間可能會更好地給予設計師培育靈感的土壤。開放辦公區地面采用混凝土自流平,除了對現有結構柱進行簡單處理外不做冗余裝飾,刻意保留的屋頂原有斑駁紋理,自然彰顯出該建筑原有的工業屬性。兩個通高書架和整面軟木展示墻引導了人視線的焦點,置于過道盡端的開放工作臺為設計師自由討論與制作模型提供了空間。
The open office design mainly aims to preserve the traces of industrial architecture and avoid excessive colors and decorations. In this information overload age, people, actively or passively, receive excess information through various channels every day. A calm and free space may better give designers the soil to cultivate inspiration. The floor of open office area is recovered by self-leveling concrete. In addition to the simple treatment of existing structural columns, there is no unnecessary decoration. The original mottled texture of the roof is deliberately retained, which naturally highlights the original industrial attributes of the building. The full-height bookshelves and full-display cork walls guide the focus of sight, and the open workbench at the end of the corridor provides space for designers to discuss and make models freely.


開放的辦公區域Open office space
©趙俊 Jun Zhao

辦公室局部A corner of the office
©趙俊 Jun Zhao

辦公室的模型擺放區Model display area in the office
©陳佳婧 Jiajing Chen
讓人放松的開放式廚房及室外小院
Relaxing open kitchen and outdoor courtyard
廚房空間原來是銅絲廠的材料堆放室,夾在建筑北側外墻和僅僅兩米之隔的胡同之間,是一個附屬于主建筑之外的現狀加建。設計策略上保留了一半加建的部分,并將室內隔墻局部性打開形成開放式廚房,另一半拆除后形成一個小型的室外院落。整個廚房區域在材料上使用耐候鋼板和清水混凝土,喚起人們對舊工業建筑的歷史印象。翻新的屋頂上增設有兩個大型天窗以補償北側采光不足,連通室內和廚房的窗臺上也設置有鋼板,成為大家臨時小飲的吧臺。此外,放棄了常規的預制整體廚房,原創設計的多邊形洗手池在功能和造型之間找到了平衡。在去除屋頂后創造出來的小院地面鋪上了和建筑外表皮一樣的紅磚,并栽種了來自胡同修剪廢棄的梧桐樹枝,設計師在工作之余可以在這里休憩身心并感受到胡同里飄來的市井煙火與民生喧囂,宛如一個舊工業建筑和胡同間對話的連通器。
The kitchen space, originally a material storage room of the copper wire factory, sandwiched between the building's northern exterior wall and a lane just two meters apart, was an addition to the main building. Strategically, we retained half of the added part and partially opened the interior partition to form an open kitchen, while the other half was removed to form a small outdoor yard. The use of weatherproof steel plates and fair-faced concrete throughout the kitchen area evokes a historical impression of old industrial buildings. Two large skylights are added to the refurbished roof to compensate daylight on the north side. Steel plates are also installed on the windowsill connecting the interior and the kitchen, making it a temporary drinking bar. In addition, we gave up the conventional prefabricated integral kitchen, with the originally designed polygonal hand washing sinks balancing functionality with style. In the yard created after removing the roof, the ground is paved with red bricks like the facade of the building and planted with discarded phoenix tree branches from the hutong. Designers can rest here after work and feel the hustle and bustle of daily life in the alley. It is like a connector between the old industrial building and the hutong.

廚房空間Kitchen space
©趙俊 Jun Zhao

多邊形洗手池Polygonal hand washing sinks
©趙俊 Jun Zhao

室外小院一角A corner of the yard
©瞿平山 Pingshan Qu
極致可變的“三重桌”多功能空間
Extremely changeable "Triple Layer Table" multi-functional space
由于整個空間是設計給有著緊密聯系而又有著各自特定使用訴求的三個團隊共同使用,因此如何在一個有限的空間內實現多重功能的復合性使用成為了一個關鍵性問題。基于這個原初需求,“三重桌”多功能空間成為了整個設計的重心。首先利用兩片3米高的玻璃推拉隔斷將整個多功能空間和開放辦公區分開,同時在中間梁下設置了3扇通高的旋轉門,使得多功能區在必要的時候可以被隔離為兩個相對獨立的空間來使用。同時不再僅僅將設計討論停留在室內層面,而是將事務所一直以來在景觀都市主義和復合城市中關于混合用地的思考引入其中,采用多變的空間來應對現代城市化進程下的多功能需求,一系列不同的空間組合形態覆蓋映射了城市功能中的辦公、商業、居住這三個主要類型。
Since the whole space is designed for three closely related teams with their own specific use needs, it is critical to realize the composite use of multiple functions in a limited space. Based on this requirement, "Triple Layer Table" multi-functional space has become the core of the whole design. The multi-functional space is separated from the open office space by two 3-meter-high glass sliding partitions, and three full-height rotating doors are set under the middle beam, so that the multi-functional space can be separated into two relatively independent spaces when necessary. At the same time, we no longer just stay indoors in the design discussion, but bring in PMA's long-standing thinking on mixed land use in Landscape Urbanism and combinatory city, using changeable space to meet the multi-functional needs in the modern urbanization process. A series of different spatial combination forms map three major types of urban functions: office, business and residence.

“三重桌”拆解圖
Exploded axonometric drawing of the "Triple Layer Table"
“三重桌”的實體界面主要包括三個部分:玻璃材質的核心桌面、外側木質環狀大桌面、可沿軌道滑動的桌腿,而這三個界面也構成了三個主要使用場景:
玻璃材質的核心桌面——辦公
中間的鋼化玻璃桌面主要承載了畫圖、小組討論、模型制作等核心的設計工作室日常,這一辦公性功能也是該空間最常用的使用形態。
外側木質矩環形大桌面——商業
將兩側的矩環形桌面通過懸索調整到合適高度后,該空間可以為會議、評圖和講座等活動提供適宜的空間。對于需要滿足更多人參加的大型活動,則可以將會議室和多功能室之間的三面旋轉隔斷門打開,將兩個空間聯通起來進行一體化使用。
可沿軌道滑動的桌腿——休閑
桌腿被設計成帶有滾輪的長方體,其既是桌面的支撐構件,亦可在桌面升起后作為展臺使用,并且在桌腿內設計有隱藏的儲藏空間,方便物品收納。在展覽和聚會時,升到半空的玻璃桌面則可以作為核心展臺或者酒水架使用。周末和下班后,配合輕質球臺或球網還可以開展乒乓球、羽毛球、瑜伽等體育休閑活動。
The "Triple Layer Table" mainly consists of 3 parts physically: the core table top made of glass, the large circular table top made of wood on the outside, and the table legs that can slide along the tracks, which also constitute the 3 main usage scenarios:
The core table top made of glass – Office
The tempered glass table top in the middle mainly carries the daily routine of the design studio such as drawing, group discussion and model making. The office function is also the most common usage of this space.
The large circular wood table top on the outside – Commerce
After adjusting the circular wood table top to an appropriate height through suspension cables, it can provide a suitable space for activities such as meetings, design reviews and seminars. For large events that require more people to participate in, the three-sided rotating partition doors between the conference room and the multi-function room can be opened to connect the two spaces.
Table legs that can slide along the tracks – Leisure
The legs are designed as cuboids with wheels, which are not only the supporting components of the table, but also can be used as a booth after the rise of the table top. They also have hidden storage spaces inside for easy storage. During exhibitions and parties, the glass table top raised in the air can be used as a core booth or wine rack. At weekends or after work, sports and leisure activities such as table tennis, badminton and yoga are available here with light tables or nets.

從辦公區看“三重桌”多功能空間
The "Triple Layer Table" multi-functional space seen from the office area
©趙俊 Jun Zhao

三面旋轉的墻體保證了空間聯通的可能性
The three rotating wall ensures the possibility of spatial connection
©趙俊 Jun Zhao

桌面升起可提供開敞空間,將會議室轉換為活動室
The raised table tops provide a wide space that transforms the meeting room into an activity room
©趙俊 Jun Zhao
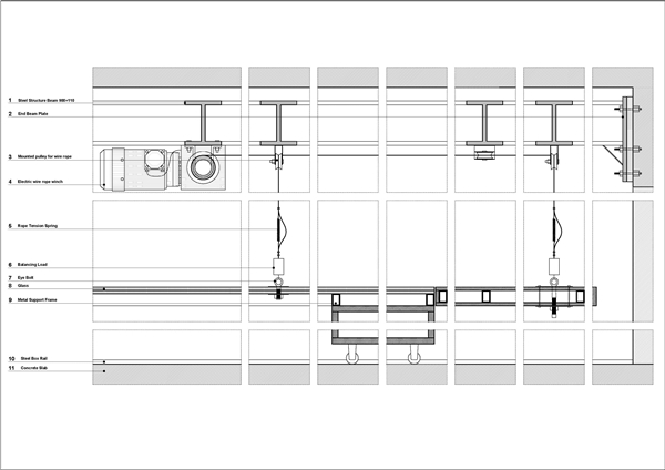
在“三重桌”的機械設計上,建筑師與工程師緊密合作。三重桌的整個機械裝置固定在一組井字形的鋼梁上,主鋼梁通過牛腿固定在建筑結構梁上。兩個功率為1.2千瓦的電動鋼絲提升機為裝置提供動力,每部提升機對應4個特殊位置的滑輪,精心設計的滑輪組可以獨立引導兩重桌面進行升降。為最小化提升機拉繩帶來的視覺影響,在嘗試了多種材料后選擇了直徑僅為兩毫米的鍍鋅鋼絲繩作為牽引材料。此外,如何保持鋼絲的拉力也是一個關鍵問題。鋼絲繩具有強度高、韌性好、直徑小的優勢,但因材料自身存在的內部張力,在缺乏外部壓力的情況下極易彈出提升機滾輪。最終設計了一套利用彈簧和重錘的相互作用以持續保持鋼絲繩拉力的特殊裝置來解決這一問題,并將其和隱藏在桌面下的可拆卸裝置結合,使“三重桌”的機械裝置達到了可隨時拆卸的效果,并且最小化了對使用者的視覺影響。
Architects worked closely with engineers on the mechanical design of the “Triple Layer Table”. The entire mechanism of the Triple Layer Table is fixed on a set of #-shaped steel beams, with the main steel beams fixed to the building structure beams by corbels. The device is powered by 2 1.2 kw electric wire hoist, each corresponding to 4 special position pulleys, and a well-designed pulley block can independently guide the lifting of the 2 table tops. To minimize the visual impact brought by the hoist rope, after experimenting with a variety of materials, we chose a galvanized wire with a diameter of only 2mm. In addition, how to maintain the tension of the wire rope is a key issue. Wire rope has the advantages of high strength, good toughness and small diameter, but due to the internal tension of the material itself, it is easy to go out of the hoist block when lack of external pressure. Finally, we designed a special set of devices that utilize the interaction of spring and counter weight to maintain the tension of the wire rope continuously, and combined it with the detachable device hidden under the table top to make the mechanical device of the Triple Layer Table detachable at any time and minimize its visual impact on users.

“三重桌”裝置工程圖 "Triple Layer Table" installation engineering drawing
https://v.qq.com/x/page/s09388sbm01.html
“三重桌”使用視頻Video of "Triple Layer Table" use© Andrea Cadioli
編輯:王子悅
相關閱讀
江蘇揚州:今年實施五大攻堅行動提升城市綠化
城市道路綠化增綠行動。利用今年春季綠化黃金季節,針對城市道路綠化達標率、林蔭路覆蓋率等指標,全面開展道路綠化增綠提綠補綠,重點對87條道路的行道樹“有綠無蔭、有景少蔭”、綠化品種單一等問題進行整改,形成配置合理、錯落有致、層次清晰的道路綠化景觀【詳細】
北京昌平新城東區將打造濱水商業消費新地標
昌平新城東區位于昌平區南邵鎮,規劃建設用地面積11平方公里,規劃人口12萬,圍繞打造首都北部消費新地標編織街區控規已獲批。未來,昌平新城東區將打造成為京北體驗消費示范區、山水宜居典范城區、高水平綜合服務承載區和智慧產研創新園區【詳細】
南寧園博園舉辦“禮樂園博·南寧花朝盛典”
活動期間,南寧園博園還舉辦了漢服新秀大賽、同袍巡游、及笄成人禮、國風婚禮妝照展示、明制婚禮儀式典禮、六藝游園、書畫體驗、國風集市等精彩紛呈的活動,同時邀請眾多知名國風模特參與表演展示【詳細】
成都首屆“最美公園”評選結果出爐
據成都市公園城市建設管理局相關負責人介紹,本次“最美公園”評選范圍包括23個區(市)縣已建成開放的1514個公園,包括綜合公園、口袋公園,還有郊野公園【詳細】



