瓦哈卡:Oaxaca住宅兼工作室
2011-08-05 08:57:04 來源:園林景觀網 瀏覽次數:

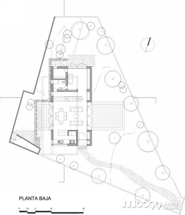
總平面圖

剖面圖
編輯:wenweihua
凡注明“風景園林網”的所有文章、項目案例等內容,版權歸屬本網,未經本網授權不得轉載、摘編或利用其它方式使用上述作品。已經本網授權者,應在授權范圍內使用,并注明“來源:風景園林網”。違反上述聲明者,本網將追究其相關法律責任。
相關閱讀
園冶杯獲獎作品丨車公莊19號院景觀改造
設計師既是場地修繕者也是直接使用者,采用多方共謀共建的方式,以生態、健康、友好作為核心手段,修復大院環境,創造活力新生。建成后社區環境大幅度提升,社區鄰里互識,溫暖度開始回升,成為綠色創新友好的健康示范項目【詳細】
園冶杯獲獎作品丨合肥逍遙津公園改造
按照“古風古韻 生態生活”的設計原則,淡化商業、娛樂功能,力求“水清、樹綠、景美、生態優”,回歸園林藝術本源,打造合肥市民心目中的“古逍遙津”【詳細】
河北省第六屆(滄州)園林博覽會5月26日開幕
本屆園博會主題為“千里通波、大美運河”,園博園占地面積196.7公頃,規劃建設有“一帶三區”,即:運河風光帶,城市展園區、專類植物展園區、綜合服務區,建成13個城市展園和滄州坊商業街羅列其中【詳細】
首鋼園變身高端“秀場”
打造全球首發中心、首發首秀首展紛至沓來、科幻企業云集……現如今的首鋼園變身高端“秀場”,吸引科技、科幻、體育、文化、商業等產業集聚。記者近日獲悉,一季度首鋼園舉辦各類活動會展78場【詳細】



