2019園冶杯專業獎丨武漢保利軍運城運動員村

項目名稱:武漢保利軍運城運動員村
項目位置:湖北省武漢市
項目面積:22公頃
業主單位:保利地產武漢分公司
設計單位:武漢市中創環亞建筑景觀設計工程有限公司
施工單位:廣州普邦園林股份有限公司
項目時間:2017.1.8-2019.5.31
項目概述
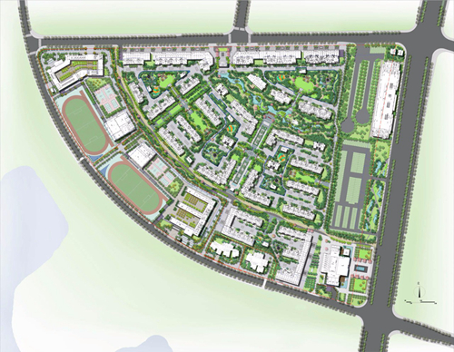
項目基址緊鄰黃家湖規劃公園,周邊用地多為居住村落,景觀資源豐富且環境宜居。基址現有周邊道路為黃家湖大道、鐵軍路等,三條規劃道路尚未建。有規劃八號地鐵站,出行方便。

設計說明

2019年10月,第七屆世界軍人運動會在武漢舉行。軍運城運動員村是在運動會舉辦期間為世界各地運動員準備的宿舍。比賽期間將有來自世界各地的近萬名運動員居住于此。“民族的才是世界的。”景觀設計希望通過展示中式傳統居住智慧的方式向來自世界各地的軍人運動員們輸出中國文化。
整個社區的景觀設計提取了中國古典園林的造景手法,用現代的方式進行演繹。社區共分為5個組團,分別用深受國人喜愛的傳統植物梅、蘭、竹、菊、荷進行命名。在生態性方面,社區內運用了大量的透水鋪裝,并設計了多處雨水花園,用這樣的方式來緩解強降雨對城市的影響。



設計思路
設計三大出發點:文化性、宜居性、生態性。文化性主要表現在用景觀設計體現中國傳統文化;宜居性在于社區內健全的休閑設施,滿足居民的日常使用需求。生態性主要通過雨水花園等海綿設施的設計,保障場地的生態安全。
社區整體景觀結構分為三軸五園,通過景觀生態軸、景觀體驗軸、景觀次軸將社區分為梅、蘭、竹、菊、荷五個居住組團。



景觀體驗軸借鑒了中式傳統居住智慧中的院落文化,通過層層遞進的景墻圍合出了空間豐富的院落,每一層院落根據重要性表現出不同的等級。豐富的院落空間讓居民在歸家途中體驗中式禮制的尊貴與禮遇。











景觀生態軸主要為社區內的一條蜿蜒曲折的水溪,是社區內面積最大的公共綠地,同時聯通著社區主入口及停車場。水景與園路交相輝映,步移景異,小橋流水,鳥語花香,讓景觀生態軸別有一番趣味。




社區內的五個居住組團分別以梅、蘭、竹、菊、荷命名,每個組團都定制了專屬的logo標識、文化符號及燈具。同時在植物設計方面,也考慮了植物的主題,通過植物設計打造不同的主題氛圍。






編輯:楊賡
相關閱讀
2019園冶杯專業獎丨The Line Mochit
The Line公寓希望將旅行至各自然景觀的概念體現于基地中,例如,流線的道路模仿鐵軌及月臺。地線、水線、云線、園線這四個各有特色的區域相連,體現出不同的設計概念【詳細】
2019園冶杯專業獎丨泰國曼谷森之居
居于擁擠的城市之中,每個人都需要可以放松身心以及接觸自然氛圍的地方,森之居試圖將自然的氛圍及觀感帶回現代的城市中。山谷為其中花園的主要設計概念,建筑物環繞著花園,同山里的樹在各種環境中生長著【詳細】
2019園冶杯專業獎丨河源雅居樂御賓府
萬山成一綠,萬綠成一湖。【詳細】
2019園冶杯專業獎丨北京龍湖G-PARK科技公園
項目名稱:北京龍湖G-PARK科技公園【詳細】

