寶佳豐國際設計丨中海北京金安環宇薈





承襲自然主義,邂逅都市花園
她是觸動你的那幅自然畫卷
她是致敬冬奧會的歷史記載
她是無與倫比的下沉花園
01.
項目概況
Project overview
656地塊位于北辛安路與阜石路路口東南角,地鐵6號線與輕軌一號線均通過地塊,交通便利。656地塊也是北京石景山區北辛安棚戶區改造的先行建設區域。此地塊處于通往首鋼園與南部各開發區域必經之路。設計包含三棟混合商業與辦公的高層建筑。
02.
設計說明
design description
設計理念
自然主義的都市花園
致敬冬奧會
以雪山、峽谷、瀑布、冰凌等自然元素為靈感
創造獨具特色的商業辦公空間

特定地點設計
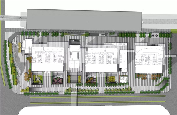
根據不同的使用行為將整個場地劃分為三個具個性的設計區域:西部的迎賓廣場,地面層,場地南部的下沉花園。獨特印象:設計將突出獨特性,創造有別于傳統的室外景觀。

▲區域劃分
迎賓廣場
標志性元素:創造標志性的景觀元素給場地增加記憶點與視線焦點,迎賓廣場上的雪山雕塑亭作為整個場地的標志性景觀元素,打造體驗式景觀空間、營造獨特的氣氛。

▲西側主題雕塑場景,階梯種植

▲西側主題雕塑近景
地面層
設計適宜的空間尺度,與豐富的景觀要素創造舒適的戶外活動空間。提供多種活動的可能性,預留足夠的空間,確保場地可被大量人流使用,創造連貫的聯系讓視線與交通更加暢通。

▲地面層總平面
建筑語言:場地設計借鑒建筑設計語匯使整體達到統一。鋪裝設計參考建筑設計語匯,使建筑與場地統一。




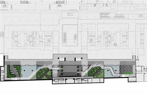
下沉花園

▲下沉花園平面

▲下沉花園立面
下沉花園以自然山巒和洞穴為概念,露天部分為山巒,橋下為洞穴。橋下光線比較弱,設計選用大面積的不銹鋼裝飾柱體和頂面,與地面的水景交相輝映,形成奇幻的洞穴體驗。









細節展示
以雪山、瀑布、冰凌、峽谷等自然元素為靈感,創造獨具特色的下沉花園。

▲吊頂以雪花形態為創造源頭,呈現六邊形

▲雨景

▲中庭景觀墻

▲山型演變的階梯種植池

▲吊墜

▲東洞倒影池
03.
實施過程
Implementation process
吊頂

吊頂采用整板不銹鋼做不同面層工藝,對分塊排版進行優化設計,減少拼裝數量。

吊墜采用木紋鋁方通,不銹鋼管吊掛,安裝便捷,材料穩定性高。
臺階及階梯種植


為減輕地庫荷載,階梯種植池及臺階采用鋼結構框架設計,在滿足種植需求的情況下,盡可能的減輕重量。
背景墻

背景墻樣板先行,采用不同材料不同規格板式對比,最終選定最優效果。
景觀墻

景觀墻的造型做出多個樣塊,不同面層質感及顏色進行對比,選出最優呈現效果。
立柱外包

結構柱外包,采用不銹鋼大板拼接,一張不銹鋼面板上雕刻不同面層,一個整圓分為兩塊組裝,落地具有很強的整體感。
植物

園區內選購多種珍惜樹種,銀白槭,美國紅楓,楸樹,為該項目增添更多的色彩和層次。

植物層次豐富,品種多樣。
項目信息
項目名稱:中海北京金安環宇薈
項目地點:北京
景觀總面積:130000平方米
業主單位:中海地產
景觀設計/深化:寶佳豐(寇航 李文學 馬騰 葛淑盼 周揚 魏新宇 梁瑞昕 范兆洋 徐宏麗 袁夢影 李秋芳 劉晶)
方案:Landscape Collaboration Co., Ltd.
施工單位:上海嘉來景觀工程有限公司
建筑設計公司:一合建筑設計研究中心、中國建筑設計院有限公司
景觀攝影:頑圖建筑攝影工作室欒祺
設計時間:2019年
編輯:liqing
相關閱讀
江蘇揚州:今年實施五大攻堅行動提升城市綠化
城市道路綠化增綠行動。利用今年春季綠化黃金季節,針對城市道路綠化達標率、林蔭路覆蓋率等指標,全面開展道路綠化增綠提綠補綠,重點對87條道路的行道樹“有綠無蔭、有景少蔭”、綠化品種單一等問題進行整改,形成配置合理、錯落有致、層次清晰的道路綠化景觀【詳細】
北京昌平新城東區將打造濱水商業消費新地標
昌平新城東區位于昌平區南邵鎮,規劃建設用地面積11平方公里,規劃人口12萬,圍繞打造首都北部消費新地標編織街區控規已獲批。未來,昌平新城東區將打造成為京北體驗消費示范區、山水宜居典范城區、高水平綜合服務承載區和智慧產研創新園區【詳細】
南寧園博園舉辦“禮樂園博·南寧花朝盛典”
活動期間,南寧園博園還舉辦了漢服新秀大賽、同袍巡游、及笄成人禮、國風婚禮妝照展示、明制婚禮儀式典禮、六藝游園、書畫體驗、國風集市等精彩紛呈的活動,同時邀請眾多知名國風模特參與表演展示【詳細】
成都首屆“最美公園”評選結果出爐
據成都市公園城市建設管理局相關負責人介紹,本次“最美公園”評選范圍包括23個區(市)縣已建成開放的1514個公園,包括綜合公園、口袋公園,還有郊野公園【詳細】



